Hausansicht Sommer | © Haus Bruckner
Hausansicht vorne | © Haus Bruckner
Wegweiser | © Haus Bruckner

Haus Bruckner

holiday apartment
Stubenberg
from € 60.00

Surrounded by greenery, our house is located on a sunny south-facing slope with a panoramic view, in a quiet location. Directly on the hiking trail and only 4.5 km from the Stubenbergsee. We offer you 2 cozy apartments for your relaxing vacation: one with a balcony and 2 bedrooms, one with a terrace and 1 bedroom. Both apartments offer enough space for 2 to 4 people and are also ideal for a comfortable stay of 2 families of friends. Connoisseurs will find wine taverns nearby. We are a GenussCard company!

special service
  • GenussCard Steiermark

Health and security measures

  • Bedlinen, towels and laundry are washed according to rules of local authorities
  • Non-cash payment possible

Facilities

  • Facilities / Services

    • family friendly
    • terrace
    • garden furniture
    • car parking lot
    • heating
    • farm produce
  • Location

    • close to forest
    • quiet location
    • hillside location
    • lake - distance (m): 4500
    • on the hiking trail
  • Children

    • playground
    • child-friendly
    • sandboxes
    • crib/baby bed
  • Farm facilities

    • honey
    • apples
    • fruit
    • pears
  • Cleaning

    • Guests have the possibility to dispense the daily cleaning of their room
  • Waste separation & waste avoidance

    • Waste separation / recycling containers
  • Beds & rooms

    • holiday apartment/s: 2
  • Sports / Leisure time

    • garden / meadow
  • Foreign languages

    • English
    • German
  • Water economy

    • Guests can use towels several times
  • Conditions

    including operating costs and pre-cleaning Short stay surcharge up to 3 nights: € 10.00 per night


Contact & Directions

Haus Bruckner

Vockenberg 16,
8223 Stubenberg am See AT

Arrival

Arrival: 2 p.m. Departure: 9:30 a.m.

How to get there: In Vockenberg there is a central crossing on the road between Tiefenbach and Schielleiten. From this intersection green signs with the inscription "Ferienwohnung Bruckner" lead directly to our house (approx. 1.6km).

Check-In:
15:00 - 18:00
Check-Out:
08:00 - 10:00

360° Panorama

360° Panorama

Photos

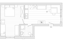
  • Size 45 m²
    Occupancy 1 - 4 adults , 0 - 3 children
    Rooms 3
    Bedrooms 2
  • Size 44 m²
    Occupancy 1 - 4 adults , 0 - 3 children
    Rooms 2
    Bedrooms 1

per unit/night
from € 60.00
WHY SHOULD YOU BOOK HERE?
  • No hidden costs
  • Personal advice
  • Secure through SSL certificate
  • Independent ratings